Nakahouse
Architect: XTEN Architecture / (Monika Häfelfinger, SIA; and Austin Kelly, AIA)
Location: Hollywood Hills, CA, USA
Photography: Steve King
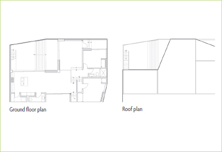
This house is built on a hill, and the various levels between its different blocks imitate the curved shape of the site. The remodeling included opening up the exterior to the beautiful views, which had not previously been available, adding terraces to the bedroom wing, and building a large terrace to link the kitchen/dining area with the living room.


119
The sliding windows become doors and are concealed inside the wall, creating the feeling that they are not there. This roof garden is notable for its unexpected white color, in line with the rest of the house.

The exterior of the house is irregular in appearance, while the interior is geometric and almost aseptic. The white walls and floor and the sliding doors make the space seem unified.


120
The walls, made almost entirely from glass, allow you to see in from the outside if the lights are on. The decor is complemented by the façade in form and color.


