Axial Symphony
Landscape design: Design Systems Ltd (Lam Wai Ming, Fanny Leung, Fang Huan Huan, Zhang Xing, and Lansy Dai)
Location: Shenzhen, China
Photography: Design Systems Ltd
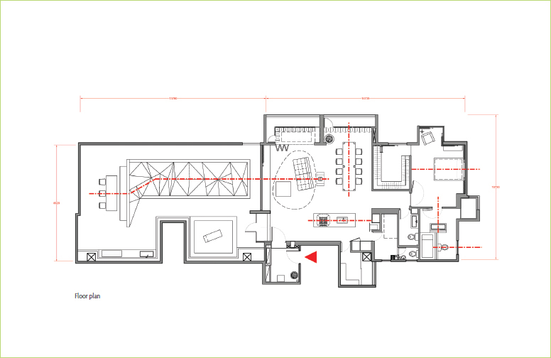
The designers of this house sought to create a symmetrical space in which the inhabitants could achieve a state of experiential and spiritual balance. The starting point for this project is the manipulation of the central axis. The furniture in each room is laid out in the space in relation to the same axis so that the individual is always at the epicenter of the space.


047
The original terrain in this terrace with volume was altered to create the green hills that coincide with the axis of the window and the living room couch. The effect is innovative and relaxes the eyes.


