Sustainable Wood House in Antony
Architect: Djuric Tardio Architectes
Landscape design: Jeanne Dubourdieu (Atelier de paysages)
Location: Antony, France
Photography: Clément Guillaume
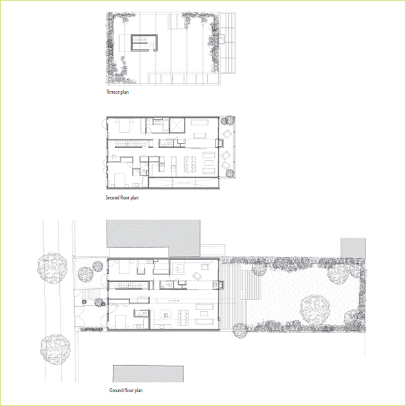
This small, self-sufficient wooden French house was designed specifically for the family that was to live in it. This involved creating several exterior spaces so that the children could enjoy the outdoors and choosing modern, functional furniture that is ideal for a young person.


116
A wooden arbor creates shadowed areas. The effect would be even greater if creepers were planted to climb the structure, forming a kind of natural cabin.






117
The entirely wooden frame of the arbor calls to mind buildings of the Old West, an effect that is reinforced with a swing made from the same material.
